EDIFÍCIO DE HABITAÇÃO COLECTIVA

ESCRITÓRIO

OBRAS E PROJECTOS

1992-94   (projecto solicitado pelo Arqº Germano Castro Pinheiro)
EN 13, Alto da Pêga, Benguiados, Vila do Conde
Projecto Base
SOPETE 

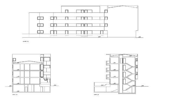
PLANTA/ CORTES/ ALÇADOS

ESQUISSOS

MODELO 3D

FOTOGRAFIAS

MEMÓRIA DESCRITIVA

Cortes e Alçado do Lote 2        

JOÃO PEDRO XAVIER - ARQUITECTO, LDA