REMODELAÇÃO DE APARTAMENTO E CAVE NO EDIFÍCIO ALTO DA VILA

ESCRITÓRIO

OBRAS E PROJECTOS

1993-94   
Foz do Douro, Porto
Obra Construída
Dr Carlos Soares

PLANTA/ CORTES/ ALÇADOS

ESQUISSOS

MODELO 3D

FOTOGRAFIAS

MEMÓRIA DESCRITIVA

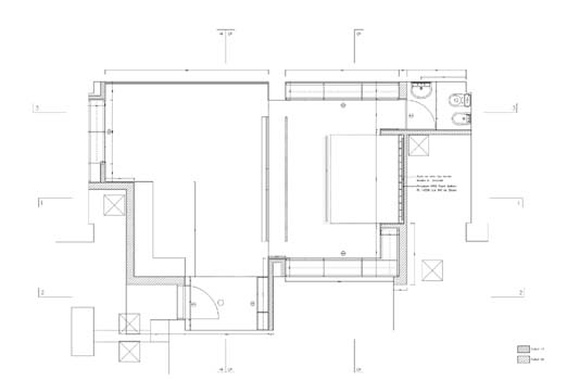
Planta da Cave                     

JOÃO PEDRO XAVIER - ARQUITECTO, LDA